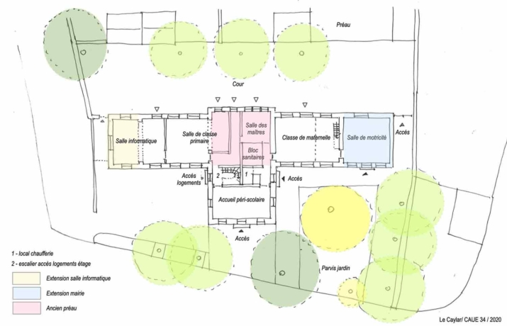
La municipalité du Caylar a décidé de rénover l’école du village construite entre 1885 et 1888 puis agrandie en 1922. Aujourd’hui, l’école accueille des maternelles et des primaires. Elle comprend deux classes, une salle de motricité, une salle informatique et un espace réservé à l‘accueil périscolaire.
Les élus ont inscrit cette rénovation dans le programme “Bourg centre” et souhaitent qu’elle soit à la fois fonctionnelle, évolutive, numérique, et vertueuse du point de vue environnemental. À l’étude également : la réalisation d’une cantine scolaire, aujourd’hui externalisée.
Les façades de l’école et la toiture ont été restaurées, mais pour l’intérieur tout reste à faire ! Notamment les questions d’accessibilité, thermiques, sanitaires et de sécurité du bâtiment.
Le CAUE 34 a conseillé la commune sur la marche à suivre pour mettre en œuvre ce projet. Il a participé à la définition d’une mission de maîtrise d’œuvre et accompagné la municipalité pour la mise en place d’une consultation d’équipe de maîtres d’œuvre.
L’équipe lauréate de cette consultation, constituée du cabinet ESTEBE & CATHALA architectes, du bureau d’études BASE pour les structures et du bureau d’études Fluides et thermique rénovation DME, doit préalablement réaliser une mission de diagnostic, suivie d’une mission de maîtrise d’œuvre. Elle permettra de valider les éléments du programme, et la faisabilité de l’opération au regard des contraintes techniques et économiques imposées par l’édifice.
L’équipe de maîtrise d’œuvre s’est rapidement mise au travail afin de permettre à la collectivité d’inscrire ce projet au plan de relance du gouvernement (Rénovation énergétique des bâtiments publics).



