La commune de Colombières-sur-Orb, au pied du massif du Caroux, est constituée de plusieurs hameaux mais sans véritable cœur de village, support de vie collective. Forts de ce constat et soucieux d’y remédier, les élus ont sollicité le CAUE de l’Hérault pour les accompagner dans une démarche de création d’une centralité qui fait aujourd’hui défaut sur la commune.
Après repérages et échanges avec les élus, le secteur du village le plus propice à cette création est potentiellement celui de “l’entrée des Gorges”, l’une des entrées du massif où se trouvent notamment la mairie, l’école, la bibliothèque, deux salles communales, une buvette, une épicerie…
Mais, si le site est remarquable et emblématique, il est aujourd’hui en mauvais état et contraint. Les équipements présents sont pour certains peu valorisés et sans relation avec le lieu. La réflexion préalable pour ce cœur de village forcément atypique a porté d’une part sur les activités du site et l’optimisation du bâti existant, et d’autre part sur l’aménagement du site lui-même.
Un diagnostic des espaces “libres” a permis de définir un périmètre de projet pertinent ainsi qu’un scénario schématique de requalification et de mise en valeur du site, prenant en compte la réorganisation des activités. À l’issue de ces préalables, la municipalité s’est engagée dans la phase pré-opérationnelle du projet d’aménagement du site sur la base d’un cahier des charges rédigé par le CAUE 34.
Après mise en concurrence, c’est l’agence Eskis Paysagistes qui a été retenue par les élus. Une première rencontre le 7 octobre dernier avec les élus, l’équipe retenue et le CAUE 34 a permis de parcourir le site et d’échanger sur les enjeux du projet. À suivre !
- Les orientations d’aménagement du site.
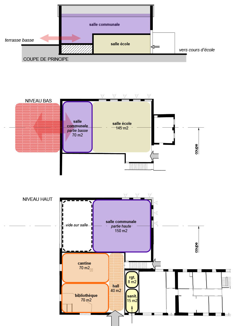
- La restructuration envisagée de l’ensemble salle communale, coworking, cantine, salle école.
- Le site vu depuis le pont sur la RD 908 qui traverse le village, avec la mairie en arrière-plan.
- L’entrée dans le site, avec la mairie/école récemment rénovée (rénovation BBC Effinergie, Ici et Là architectes).
- En remontant dans le site : le “chalet vert”, salle associative, à gauche.
- Le parking actuel avec la salle polyvalente en arrière plan qui tourne le dos au site.
Crédits documents & photos : AP, SG, CAUE 34






